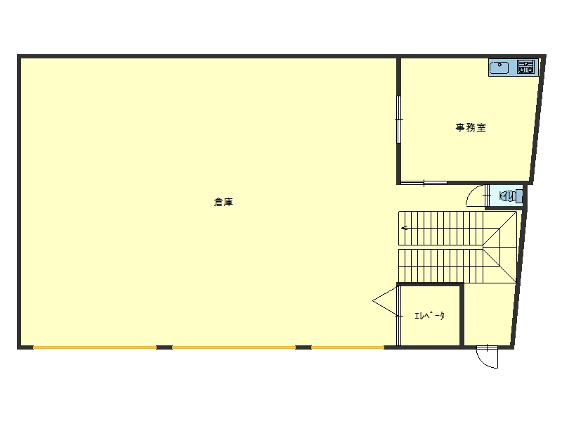
図面1F 図面をクリックで拡大
図面2F 図面をクリックで拡大
周辺地図
画像をクリックで拡大
前の画面へ戻る
福知山不動産株式会社 Tel:0773-22-2810 Fax:0773-23-8136 e-mall:f-f@fu-fudousan.co.jp

校区  修斉・成和 家賃   200,000円+消費税20,000
所在地  福知山市問屋町11−8 保証金  1000,000円
階建  鉄骨造亜鉛メッキ鋼板葺2階建 礼金        0円
取引態様  仲介 CIZ保証料  円
その他
 建物面積 1階194.3u、2階190.59u
 エレベーター、トイレ、事務所:エアコン、IHヒーター付帯設備ではないです。
 契約期間1年未満の場合、保証金の返還はありません
 倉庫・事務所の使用目的により保険に必ず加入してください
 個人契約の場合、家賃保証会社加入要(保証料初回のみ172,040円)
 建物シャッター雨漏りあれば、貸主負担です、電気動力の契約が必要です
問屋町 貸倉庫